
| Interné ID: | F136-112-ERSR |
|---|---|
| Ulica: | Zvončeková |
| Obec: | Zalužice |
| Okres: | Michalovce |
|---|---|
| Kraj: | Košický kraj |
| Druh: | Byty |
|---|---|
| Typ: | Predaj |
| Typ bytu: | 2-izbový byt |
F136-112-ERSR
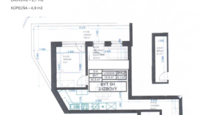
Ponúkame Vám na predaj 2 izbový byt v novostavbe GreenSde na Zvončekovej ulici v Michalovciach. Byt sa predáva v stave holobytu, čo umožňuje dokončiť byt podľa vlastných predstáv. Byt sa nachádza na 4. poschodí bytového domu. Rozloha bytu je 49,64 m2. K tomu prislúcha loggia s rozlohou 14,9 m2. Byt ponúka moderné a energeticky úsporné bývanie v meste s kompletnou občianskou vybavenosťou. Byt je vhodný aj ako investičná príležitosť. Cena bytu je 121 000 €. K bytu je možné dokúpiť aj podzemnú garáž v hodnote 22 000 €. Pre bližšie informácie a dohodnutie obhliadky ma neváhajte kontatovať.
V cene nehnuteľnosti je zahrnutý kompletný právny servis a polatky spojené s prevodom vlastníckych práv.
Spoločnosť Finanzpartner ponúka aj dlhoročné skúsenosti s financovaním nehnuteľnosti.