
| Interné ID: | F005-113PANEa |
|---|---|
| Obec: | Bratislava-Ružinov |
| Okres: | Bratislava II |
|---|---|
| Kraj: | Bratislavský kraj |
| Druh: | Domy |
|---|---|
| Typ: | Predaj |
| Typ domu: | Rodinný dom |
Novostavba rodinného domu – Ideálne dvojgeneračné bývanie (2 samostatné byty)
Hľadáte riešenie, kde môžete mať rodinu nablízku, no zároveň si zachovať úplné súkromie?
Ponúkame na predaj novostavbu rodinného domu, ktorý je koncipovaný ako dva samostatné byty (prízemie a 1. poschodie). Táto nehnuteľnosť je ideálnou voľbou pre viacgeneračné rodiny, ktoré chcú bývať spolu, no „vo vlastnom“, alebo ako kombinácia vlastného bývania a podnikania/prenájmu. Je to súčasť dvojdomu.
Hlavné benefity:
Maximálne súkromie: Každý byt má vlastný vchod, vlastné merače energií a oddelené dispozičné riešenie.
Generačné prepojenie: Ideálne pre rodičov a dospelé deti. Pomoc máte na dosah ruky, no dvere si zatvárate vlastné.
Novostavba v štandarde: Moderné technológie, nízke mesačné náklady a záruka na stavbu.
Spoločný dvor/záhrada: Miesto pre spoločné grilovačky, kým parkovanie je vyriešené pre obe bytové jednotky.
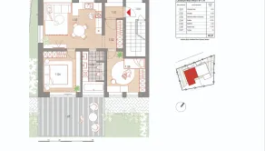
Dispozícia:
Prízemný byt: 3 izbový byt, priamy vstup na terasu/záhradu.
Byt na 1. poschodí: 3-izbový, priestranný balkón s výhľadom.
Investujte do nehnuteľnosti, ktorá drží rodinu pokope, no rešpektuje hranice každého člena.
*ZÁKLADNÉ PARAMETRE PROJEKTU**
• zastavaná plocha každého domu: **90 m²**
• výmera pozemku: **320 m²**
• výmera záhrad: **77 m² – 81 m²**
• **4 komfortné parkovacie miesta** s výmerou minimálne **15 m²**
**TECHNICKÉ RIEŠENIE A INŽINIERSKE SIETE**
Projekt je navrhnutý s dôrazom na nezávislosť jednotlivých bytových jednotiek. Každý byt má vlastné samostatné napojenie na inžinierske siete:
• samostatná prípojka vody s vlastným meraním
• samostatná prípojka elektrickej energie s vlastným meraním
• samostatná žumpa (do času vybudovania verejnej kanalizácie v lokalite)
Rezidenčný projekt **Nové záhrady – Domové role** predstavuje ideálnu voľbu pre klientov, ktorí hľadajú **moderné bývanie v pokojnej lokalite s výrazným potenciálom rastu hodnoty nehnuteľnosti**, pričom zároveň zostávajú v bezprostrednej dostupnosti hlavného mesta.
Projekt ponúka harmonické spojenie **súkromia, kvalitnej architektúry a perspektívnej lokality**, ktorá sa postupne stáva jednou z nových rezidenčných zón Bratislavy.
Cena nehnutelnosti: 599 000,-€
Neváhajte ma kontaktovať pre viac informácií alebo dohodnutie osobnej obhliadky.
Naše ceny sú vrátane provízie za kompletný servis a sú schválené majiteľom.
mobil: 0903 139 935
email: patrik.nemeth@fpreality.sk