
| Obec: | Nitra |
|---|
| Okres: | Nitra |
|---|---|
| Kraj: | Nitriansky kraj |
| Druh: | Pozemky |
|---|---|
| Typ: | Predaj |
| Typ pozemku: | Pozemky - pre rodinné domy |
F005-14-PECH
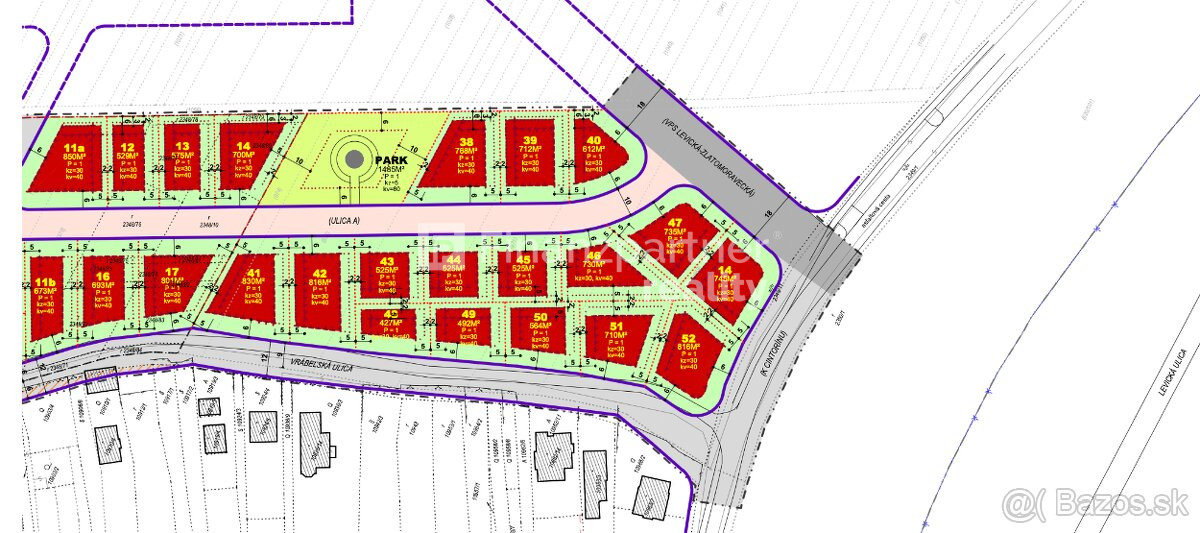
Ponúkame pozemok na predaj v atraktívnej lokalite Nitra - Chrenová s veľkým potenciálom. Aktuálne vedený ako orná pôda, no na celé územie je už vypracovaný projekt budúcej štvrte, čo z neho robí výbornú investičnú príležitosť do budúcnosti.
Pozemok sa nachádza v krásnom tichom prostredí, ideálnom na bývanie, s nádherným výhľadom na Zobor. Lokalita ponúka pokoj, súkromie a zároveň dobrú dostupnosť do mesta.
Hlavné výhody:
- perspektívna investícia
- pripravovaný rozvoj územia
- tiché a príjemné prostredie
- krásny výhľad na Zobor
LOKALITA:
• v novovznikajúcej štvrti
• kľudné prostredie
• dobrá dostupnosť do mesta
CENA:
• cena je vrátane provízie za kompletený právny servis, v prípade potreby zabezpečíme hypotekárny úver
KONTAKT:
• Peter Chmel - realitný maklér
• Finanzpartner reality
• mobil - 0903 950 063
• mail - peter.chmel@fpreality.sk
• web - fpreality.sk
Zavolajte alebo napíšte a dohodnite si obhliadku ešte dnes!