
| Interné ID: | F043-12-PAMO |
|---|---|
| Obec: | Brezová pod Bradlom |
| Okres: | Myjava |
|---|---|
| Mestská časť: | Žriedlova dolina |
| Kraj: | Trenčiansky kraj |
| Druh: | Domy |
|---|---|
| Typ: | Predaj |
| Typ domu: | Rodinný dom |
F043-12-PAMO
NOVINKA! V exkluzívnom zastúpení majiteľa domu Vám ponúkame na predaj jedinečnú ekologickú novostavbu pri lese - zdravé bývanie v harmónii s prírodou. Ideálny dom pre ľudí, ktorí hľadajú pokoj a súkromie. Lokalita: Žriedlova dolina - Brezová pod Bradlom.
Základné informácie:
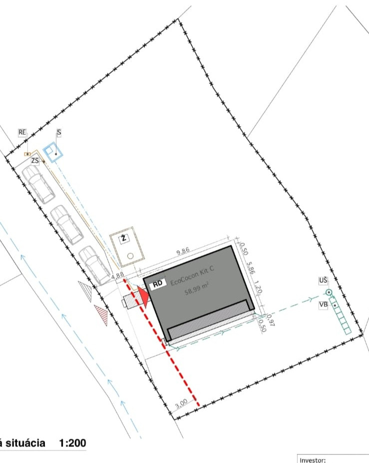
- rozloha pozemku 1 403m2
- zastavaná plocha domu: 79 m2
- novostavba - kolaudácia v roku 2025
- dom stojí na betonových stojkách
Konštrukcia a materiály:
- slamené panely EcoCocon
- vonkajšia izolácia: drevovláknitá doska
- odvetraná fasáda, rombový obklad sibírsky smrek
- strecha plechová
- izolácia stropu a podlahy: fúkaná celulóza
- interiér: hlinené omietky, smrekové drevené obloženie
Technológie a vybavenie:
- rekuperácia
- eurookná trojsklo
-vykurovanie: stropné elektrické panely
- ohrev vody bojler
- predpríprava na fotovoltaiku
- studňa vŕtaná
- žumpa 7m3
Dispozícia domu:
- predsieň
- obývacia miestnosť
- kúpeľňa s toaletou a sprchovým kútom
- kuchyňa
- izba
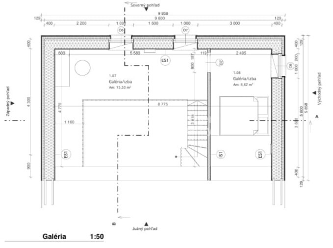
- spálňa v podkroví
- terasa na južnú stranu
Na pozemku sa nachádza aj suché WC, ovocné stromy, listnaté stromy. Pozemok je oplotený .
Spojenie prírodných materiálov, kvalitného spracovania a prírodnej lokality vytvára bývanie s jedinečnou atmosférou. Dom je ideálnou voľbou pre milovníkov prírody a zdravého bývania.
Názor maklérky: Ako realitná maklérka sa stretávam s množstvom nehnuteľností, no tento dom ma zaujal ako láska na prvý pohľad. Kvalitné prírodné materiály a dômyselne premyslené zdravé bývanie s prirodzenou zdravou klímou, tichým prostredím, ktoré sú základ pre kľudný spánok, relax a zároveň denné tvorenie v dome, či v prírode. Dom sa nachádza v prekrásnej lokalite Žriedlova dolina, kde človek zabudne na mäsitú civilizáciu, spojí sa s prírodou a tichom. Polosamota ponúka príjemných susedov, ktorí budú s Vami na jednej vlne lásky k prírode. a zvieratám. Dom je menší, hodí sa maxim pre 3,4 osoby, ideál 2 alebo 1. Veľkým benefitom je poloha pri lese a dostatočne veľký pozemok. Tento dom odporúčam klientom, ktorí hľadajú niečo výnimočné a udržateľné, nie bežnú katalógovú stavbu.
Hypotekárny a právny servis v cene.